A NEW community building could replace some public toilets in Wiveliscombe if plans are approved.
Wiveliscombe Town Council has submitted plans to redesign the public toilet block on North Street to reflect its current use.
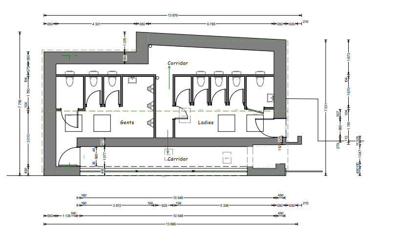
The town council says the separate male and female facilities are more than what is currently required for the town, so it is proposing to reduce the number of WC’s from seven to two gender-neutral toilets.
The council said this will result in less usage of heating and water and will also allow the unused area to be converted into a community meeting space.
READ MORE: Former Open Championship golfer to train future stars at Taunton School
READ MORE: Final 90 homes of huge Taunton housing development get the green light
Baby changing facilities will be established in both cubicles.
A spokesperson for the council said: “The community meeting space will allow the council to hold meetings and also make the space available to local communities – allowing other local community spaces more opportunity to be used by others.”
- The toilets compared to the proposed plans Picture: JV Planning & Building Design
- Picture: JV Planning & Building Design
The toilets were first established approximately 60 years ago, and it is a requirement that the town council maintain the toilets.
They added: “As such, there is limited insulation and the faculties are becoming much worn and break down easily. As such, we need to upgrade the toilets and the best way is to rebuild our internal requirements.”





There are enough places at present for meetings, without having more additional premises to upkeep, the community centre, St Andrews Church, Congregational Church, The Scout hut, rugby club, all of these would probably allow the council to hold meetings if they so wished and I am sure this could be secured at a reasonable price ? Would the council want to hold meetings in a toilet building ? I expect that additional toilets would be required for the use of the persons attending as they wouldn’t want to go outside and around the corner to the refurbished toilet block would they?
I do see that the format is outdated but please one male one female
Same area is fine but separate cubicle please I don’t need to explain why but ladies will understand 🤫🤫